Flygbild över Högbo Brukshotell mellan skog och sjö

Nytt spa & vinterträdgård på Högbo Brukshotell

Första spadtaget är satt för den populära gästrikedestinationen Högbo Brukshotells nya storsatsning – 1100 kvadratmeter spa, ny vinterträdgård, åtta nya konferensrum, 12 nya hotellrum och en totalrenoverad lobby.

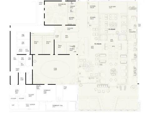
Spa ritning Högbo Brukshotell - Foto Winn Group

1100 kvadratmeter nytt spa

Högbo Brukshotells nya spa på 1100 kvadratmeter kommer erbjuda traditionella upplevelser som bastur, pool, spabehandlingar, gym och bubbelpooler. Det som gör Högbo Brukshotells satsning speciell är miljöinramningen med bar, öppen spis, loungeytor både ute och inne, som i sin helhet ska utgöra en oas för aktiva resenärer.

" - Vare sig det är på cykel, längdskidor eller till fots på Gästrikeleden, gör aktivitet och rörelse det ännu skönare att sjunka ner i ett bubbelbad eller njuta av en massage. Merparten av våra gäster är aktiva livsnjutare som trivs i naturen. Det är de och vår närhet till skog, sjö och mark som har inspirerat oss i framtagandet av det nya konceptet vilket tydligt framgår i våra val av färg, form, material och känsla – en känsla som ska sammanfläta inomhusmiljöernas bekvämligheter och naturens avkopplande kraft" säger Tomas Lindqvist, VD och hotelldirektör, Högbo Brukshotell.

 

Högbo Brukshotell

Vy över Högbo Brukshotell

Hotellverksamheten fortsätter som vanligt

Förutom ett nytt spa bygger Högbo Brukshotell 12 nya hotellrum, åtta nya konferensrum, en ny lobby med entré, reception, barer och olika loungeytor framför öppen eld samt en ny vinterträdgård med 112 sittplatser, 8,6 meter i takhöjd och stora glasfönster som generöst välkomnar naturen utanför.

Byggnationen har börjat och beräknas vara färdig till sommaren 2024. Renoveringen och utbyggnaden kommer göras i olika etapper men verksamheten fortsätter som vanligt under tiden – med undantag för hotellets pool och relax som nu är stängd.

Högbo Brukshotells storsatsning görs tillsammans med Högbo Bruks AB.

Läs mer på Högbobruk.se